Ref
Busco
Tipo
En
Zona
Habitaciones
Baños
Características
Precio

Fantástico piso de 3 habitaciones y dos baños con dos terrazas en el bario de Mirasol (ref.16201)

Piso en venta en Sant Cugat del Vallès, Barcelona (Mirasol)

venta: 625.000 €
ref. 16201
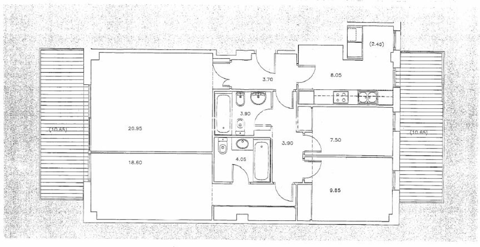
124 m2 construidos.
20 m2 terraza.
 
 Dormitorios 3
 Baños 2
 Calefacción Individual a Gas
 Trastero
Estado Buen Estado
Tipo de suelo Suelo de parqué
Ascensor
Aire acondicionado
Piscina comunitaria
Garaje
Calificación Energética (E) VER

Desde Proddigia les presentamos en exclusiva este fantástico piso ubicado en una de las zonas más demandadas de Mirasol – Hospital General, una ubicación privilegiada tanto para vivir como para invertir.


La vivienda dispone de 3 habitaciones, una de ellas en suite con baño privado, amplia y muy luminosa, además de dos dormitorios exteriores que comparten un segundo baño completo. Su distribución es excelente, con la zona de día y la zona de noche perfectamente diferenciadas, lo que aporta comodidad, privacidad y funcionalidad.


Al acceder a la vivienda, encontramos un recibidor que nos conduce, por un lado, a un amplio salón-comedor con salida directa a una agradable terraza, ideal para disfrutar de comidas al aire libre con vistas despejadas a la zona ajardinada comunitaria, ofreciendo tranquilidad y una gran sensación de bienestar.

Por el otro lado, accedemos a una cocina muy práctica, equipada con una cómoda barra para comidas informales y con salida a una segunda terraza con sol de mañana, donde se ubica la zona de lavadero, aportando un extra de funcionalidad al piso.

La vivienda está equipada con aire acondicionado por conductos y calefacción individual a gas, garantizando confort durante todo el año.

Lo suelos son de madera natura y cuenta con todas las persianas y estores automatizados, disponetambién de una llave inteligente para abrir todas las puertas de la finca y del domicilio.

Tiene incluido en el precio una amplia plaza de garaje con trastero. dispone el parquing de preinstalación de cargador eléctrico.

La zona comunitaria es, sin duda, uno de los grandes atractivos de esta finca: cuenta con una amplia área ajardinada con piscina salina con bajo mantenimiento con vestuarios y servicio de conserjería, lo que aporta un plus de seguridad, comodidad y calidad de vida.

Además ha sido restaurada recientemente toda la comunidad, zona ajardinada, terrazas, y se ha instalado un sistema de interfono actualizado

El barrio de Hospital General es especialmente valorado por su proximidad a la estación de Ferrocarriles de la Generalitat, su excelente comunicación con Barcelona y su alta demanda de alquiler, gracias a la cercanía del hospital y la universidad, lo que convierte este piso también en una magnífica oportunidad de inversión.

Una vivienda completa, en una ubicación estratégica y en una de las mejores zonas de Sant Cugat. ¡No dejen pasar esta oportunidad!


Si tuviera que vender su actual vivienda podemos coordinar ambas operaciones sin problema.

Si desea más información sobre esta propiedad, por favor, rellene el cuestionario: